XConstruct Manual
| Copyright | Copyright © 2025 XConstruct |
Table of Contents
XConstruct Handleiding
Welkom bij de XConstruct documentatie.
XConstruct is het gereedschap voor elke constructeur.
XConstruct is een toolbox voor de meest voorkomende berekeningen. U kunt kiezen uit een aantal modulen.
Bij elke wijziging wordt de berekening gestart en wordt de maatgevende unity check direct op beeld getoond.
XConstruct produceert een zeer uitgebreid en vooral leesbaar berekeningsrapport in RTF- of PDF-formaat. De uitvoer is volledig transparant en dus ook controleerbaar. Geen black-box berekening zoals u dat in veel andere programma's ziet.
Alle gehanteerde formules worden volledig en ingevuld weergegeven, inclusief een verwijzing naar de Eurocode. Dit geeft u inzicht in de berekening en zal acceptatie van uw berekening door bijvoorbeeld keurende instanties geen enkel probleem opleveren.
In XConstruct kunt u meerdere berekeningen opslaan in één projectfile en kunt u één uitvoer maken. Berekeningen kunnen worden gekopieerd, verwijderd en verplaatst.
Eurocode Normen
Berekening volledig volgens de laatste Eurocode:
- NEN-EN 1992-1-1 + C2:2011/NB:2011 (nl) - Eurocode 2: Ontwerp en berekening van betonconstructies
- NEN-EN 1992-1-2 + C1:2011 (nl) - Eurocode 2: Brandontwerp
- NEN-EN 1993-1-1 + C2:2011 (nl) - Eurocode 3: Ontwerp en berekening van staalconstructies
- NEN-EN 1993-1-1 + C2:2011/NB:2011 (nl) - Nationale bijlage bij Eurocode 3
- NEN-EN 1995-1-1 + C2:2011 (nl) - Eurocode 5: Ontwerp en berekening van houtconstructies
Aan de slag
Introductie
XConstruct is het gereedschap voor elke constructeur.

XConstruct is een toolbox voor de meest voorkomende berekeningen. U kunt kiezen uit een aantal modulen.
Belangrijkste Functies
- Bij elke wijziging wordt de berekening gestart en wordt de maatgevende unity check direct getoond
- Zeer uitgebreid en leesbaar berekeningsrapport in RTF- of PDF-formaat
- Volledig transparante uitvoer - geen black-box berekening
- Alle formules weergegeven met Eurocode verwijzingen
- Meerdere berekeningen kunnen worden opgeslagen in één projectfile
- Berekeningen kunnen worden gekopieerd, verwijderd en verplaatst
Ondersteunde Normen
- NEN-EN 1992-1-1 - Eurocode 2: Betonconstructies
- NEN-EN 1993-1-1 - Eurocode 3: Staalconstructies
- NEN-EN 1995-1-1 - Eurocode 5: Houtconstructies
Wijzigingen
Zie Wijzigingen voor de laatste wijzigingen en updates van XConstruct.
Invoer
Invoer
Indeling dialoogvenster

De applicatie bestaat feitelijk uit één dialoogvenster. Hier is bewust voor gekozen. U houdt hierdoor overzicht over de totale berekening, zowel de invoer als de berekeningsresultaten. Met een minimaal aantal muiskliks kunt u door de verschillende berekeningen en modules navigeren.
Schermonderdelen
- Berekeningsverkenner - Overzicht van alle berekeningen in dit project
- Invoer dialoogvenster per module - Invoervelden voor de geselecteerde module
- Uitvoer berekeningsresultaten - Resultaten van de 'actieve' berekening. Dit schermonderdeel is verplaatsbaar (dockabel). Dat betekent dat u dit scherm onderin beeld of bijvoorbeeld op een 2de computerscherm geplaatst kan worden. Bij elke wijziging in schermonderdeel 2 wordt de berekening opnieuw gemaakt en ziet u direct de uitvoer in beeld. Dit werkt snel en plezierig.
Snel aan de slag

Een berekening maken
-
In het functiebalk van de berekeningsverkenner kiest u voor
(berekening toevoegen) of klik op "Berekening toevoegen" -
Het bijbehorende invoerscherm wordt zichtbaar en u kunt uw gegevens invoeren. De berekeningsresultaten worden getoond in het uitvoerpaneel.
-
Kies in het hoofdfunctiebalk of menu voor
voor een afdrukvoorbeeld.
U kunt ook meerdere berekeningen maken binnen één projectfile. Zie Berekeningsverkenner.
Berekeningsverkenner
In de berekeningsverkenner worden berekeningen toegevoegd, verplaatst of verwijderd.
In dit overzicht ziet u alle berekeningen in dit project. Op die manier houdt u overzicht over de berekeningen en kunt gemakkelijk een eerder gemaakte berekening openen en wijzigen.
Door in de verkenner op een berekening te klikken wordt deze actief. Alle invoergegevens worden zichtbaar en de berekening wordt direct gestart.

Functies
| Icoon | Functie | Omschrijving |
|---|---|---|
![]() |
Berekening toevoegen | Een nieuwe berekening aanmaken en toevoegen aan het project |
![]() |
Nieuwe groep | Toevoegen van een projectonderdeel. Wanneer u meerdere berekeningen in één project wilt maken kunt de berekeningen groeperen |
![]() |
Berekening kopiëren | Er wordt een nieuwe berekening aangemaakt met "(KOPIE)" toegevoegd aan de omschrijving en alle invoergegevens worden gekopieerd |
![]() |
Berekening verwijderen | Verwijder een berekening of projectonderdeel. Na bevestiging wordt de berekening definitief verwijderd |
![]() |
Naar boven verplaatsen | Verplaats berekening omhoog in de lijst |
![]() |
Naar beneden verplaatsen | Verplaats berekening omlaag in de lijst |
| Drag & Drop | Een berekening verplaatsen via drag-and-drop (eventueel naar een andere groep) |
Opmerkingen
- Er kunnen meerdere berekeningen van hetzelfde soort worden aangemaakt binnen één projectfile
- Wanneer u in de berekeningsverkenner op een berekening klikt wordt deze actief
- Er is geen limiet van het aantal berekeningen of groepen per project
Wijzigen van afstanden
In XConstruct kunt u afmetingen wijzigen door op de maatwaarden in de grafische weergave te klikken.
Hoe te wijzigen
- Klik op een maatwaarde in de tekening
- Voer de nieuwe waarde in
- Druk op Enter om te bevestigen
De berekening wordt automatisch bijgewerkt met de nieuwe afmetingen.
Projectgegevens

Voer algemene projectinformatie in die in het uitvoerrapport wordt opgenomen.
Projectinformatie
- Projectnaam
- Projectnummer
- Opdrachtgever
- Constructeur
- Datum
- Omschrijving
Modulen
Modulen
XConstruct biedt verschillende berekeningsmodulen voor verschillende materialen.
Beschikbare Modulen
Staal
- Momentverbinding - Bereken momentverbindingen
- Lasberekening - Bereken hoeklassen
- Boutberekening - Bereken boutweerstanden
- Kolomberekening - Bereken stalen kolommen
- Samengesteld profiel - Bereken samengestelde profielen
Beton
- Betondoorsnede - Bereken betondoorsneden
- Pons - Ponsberekening
- Kruipfactor - Bereken kruipfactor
Hout
- Hout - Houtberekeningen
Staal
Staal Modulen
Staalberekeningsmodulen volgens NEN-EN 1993 (Eurocode 3).
Beschikbare Berekeningen
- Momentverbinding - Geboute of gelaste momentverbindingen
- Lasberekening - Hoeklasberekening
- Boutberekening - Enkelvoudige boutweerstand berekening
- Kolomberekening - Stalen kolom controle
- Samengesteld profiel - Samengestelde profiel eigenschappen
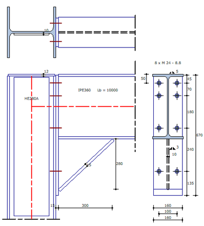
Momentverbinding
Momentverbinding volgens NEN-EN 1993-1-8 + C2/NB
Hiermee kunt u snel en eenvoudig een momentverbinding berekenen. Gebout of gelast. De userinterface is uniek en zeer gebruiksvriendelijk. Door te klikken op de getallen in de maatlijnen kunt u de afmetingen aanpassen.

Controle volgens NEN-EN 1993-1-8 + C2 / nationale bijlage
- Berekening van momentweerstand Mj,Rd
- Herverdeling van weerstanden per boutrij om een zo groot mogelijk Mj,Rd te bepalen
- Berekening van stijfheid van de verbinding
- Weergave van moment-rotatie diagram
- Classificatie verbinding stijf/flexibel of scharnierend
- Geen 'black-box' berekening maar een heldere uitvoer met uitgeschreven NEN-EN 1993 formules. De berekening is daarmee ook handmatig stap voor stap te controleren en geeft u meer inzicht in welke factoren maatgevend zijn.

Lasberekening
Berekening van hoeklassen volgens NEN-EN 1993-1-8 + C2/NB
Met deze module kunt u de hoeklassen toetsen en/of ontwerpen volgens NEN-EN 1993-1-8.

Controle volgens NEN-EN 1993-1-8 + C2 / nationale bijlage
- Controlerend en ontwerpend
- Krachten en momenten: Fx,Ed, Fy,Ed, Fz,Ed, Mx,Ed, My,Ed en Mz,Ed
- Geen 'black-box' berekening maar een heldere uitvoer met uitgeschreven NEN-EN 1993 formules
Boutberekening
Berekening van weerstanden van een enkele bout
Met deze module kunt u de opneembare krachten berekenen van een enkele bout volgens NEN-EN 1993-1-8.
Controle volgens NEN-EN 1993-1-8 + C2 / nationale bijlage
- Geen 'black-box' berekening maar een heldere uitvoer met uitgeschreven NEN-EN 1993 formules
Kolomberekening
Stalen kolomberekening volgens NEN-EN 1993-1-1.

Functies
- Knikcontrole
- Doorsnede classificatie
- Unity check uitvoer
- Transparante formules volgens Eurocode 3
Samengesteld Profiel
Bereken eigenschappen van samengestelde profielen.


Functies
- Bouw samengestelde doorsneden uit meerdere elementen
- Bereken gecombineerde doorsnede-eigenschappen
- Grafische invoer beschikbaar
Zie ook Grafische Invoer voor het grafisch invoeren van samengestelde profielen.
Beton
Beton Modulen
Betonberekeningsmodulen volgens NEN-EN 1992 (Eurocode 2).
Beschikbare Berekeningen
- Betondoorsnede - Doorsnede controle
- Pons - Ponsberekening
- Kruipfactor - Kruipfactor berekening
Betondoorsnede
Betondoorsnede berekening volgens NEN-EN 1992-1-1.
Functies
- Buigend moment controle
- Dwarskracht controle
- Wapeningsberekening
- Unity check uitvoer
Pons
Ponsberekening volgens NEN-EN 1992-1-1.

Functies
- Ponscontrole bij kolom-vloer verbindingen
- Berekening van kritische omtrek
- Wapeningseisen
- Unity check uitvoer
Kruipfactor
Bereken de kruipfactor volgens NEN-EN 1992-1-1.

Functies
- Kruipcoëfficiënt berekening
- Afhankelijk van betonklasse, vochtigheid en belastingsleeftijd
- Gebruikt voor lange termijn doorbuigingsberekeningen
Hout
Hout Modulen
Houtberekeningsmodulen volgens NEN-EN 1995 (Eurocode 5).
Functies
- Hout doorsnede controle
- Materiaaleigenschappen volgens Eurocode 5
Uitvoer
Uitvoer
XConstruct produceert uitgebreide en leesbare berekeningsrapporten.
Uitvoeropties
- Uitvoerselectie - Selecteer wat in de uitvoer opgenomen wordt
- Afdrukvoorbeeld - Voorbeeld voor het afdrukken
- Gedetailleerde uitvoer - Gedetailleerde berekeningsuitvoer
Uitvoerformaten
- RTF-formaat (voor Microsoft Word)
- PDF-formaat
Uitvoerselectie

Selecteer welke berekeningen en inhoud in het uitvoerrapport opgenomen worden.
Opties
- Selecteer individuele berekeningen om op te nemen
- Selecteer berekeningsgroepen
- Gedetailleerde formules wel/niet opnemen
- Diagrammen wel/niet opnemen
Afdrukvoorbeeld

Bekijk het berekeningsrapport voordat u afdrukt of exporteert.
Functies
- Bekijk volledige rapportlay-out
- Paginanavigatie
- Zoom bediening
- Exporteren naar PDF of RTF
- Direct afdrukken
Gedetailleerde Uitvoer

XConstruct biedt gedetailleerde, transparante uitvoer met alle formules.
Functies
- Alle formules volledig en ingevuld weergegeven
- Verwijzing naar Eurocode artikelen
- Stapsgewijze verificatie
- Geen 'black-box' berekeningen
- Geschikt voor verificatie door keurende instanties
Functiebalk

De functiebalk biedt snelle toegang tot veelgebruikte functies.
Functiebalk Knoppen
| Icoon | Functie | Omschrijving |
|---|---|---|
![]() |
Nieuw | Maak een nieuw project |
![]() |
Openen | Open een bestaand project |
![]() |
Opslaan | Sla het huidige project op |
![]() |
Ongedaan maken | Maak de laatste actie ongedaan |
![]() |
Opnieuw | Herhaal de laatste ongedaan gemaakte actie |
![]() |
Afdrukvoorbeeld | Bekijk de uitvoer |
![]() |
Export PDF | Exporteren naar PDF-formaat |
![]() |
Export Word | Exporteren naar RTF-formaat |
![]() |
Afdrukken | Afdrukken van de uitvoer |
Samenvoegen PDF

Voeg meerdere PDF-bestanden samen tot één document.
Functies
- Combineer meerdere berekeningsrapporten
- Voeg externe PDF-documenten toe
- Herschik pagina's
- Maak één uitgebreid rapport
Gebruik
- Open het Samenvoegen PDF dialoogvenster
- Voeg PDF-bestanden toe met de toevoegen knop
- Herschik bestanden indien nodig met omhoog/omlaag knoppen
- Klik op Samenvoegen om de gecombineerde PDF te maken

Literatuur
Literatuur
XConstruct berekeningen zijn gebaseerd op de volgende Eurocode normen.
Eurocode Normen
- Eurocode 2 - Betonconstructies (NEN-EN 1992)
- Eurocode 3 - Staalconstructies (NEN-EN 1993)
- Eurocode 5 - Houtconstructies (NEN-EN 1995)
Nationale Bijlagen
Alle berekeningen bevatten de Nederlandse Nationale Bijlage (NB) parameters.
Eurocode 2
NEN-EN 1992: Ontwerp van betonconstructies.
Gebruikte Normen
- NEN-EN 1992-1-1 + C2:2011 - Algemene regels en regels voor gebouwen
- NEN-EN 1992-1-1 + C2:2011/NB:2011 - Nationale Bijlage
- NEN-EN 1992-1-2 + C1:2011 - Brandontwerp
- NEN-EN 1992-1-2 + C1:2011/NB:2011 - Nationale Bijlage voor brandontwerp
Behandelde Onderwerpen
- Betondoorsnede ontwerp
- Pons
- Kruip en krimp
- Wapeningseisen












